PT. AS MU IN JAYA TEKNIK, Merupakan suatu perusahaan yang berkedudukan di SURABAYA yang didirikan pada Tahun 2001 dengan tekad untuk maju dan berkembang menjadi yang terbaik dibidang Kontraktor Lift dan selalu melakukan yang terbaik untuk konsumen konsumennya. Kami Kontraktor Lift Surabaya Siap Melayani anda 24 jam. Harga Silahkan Hubungi Kami.
Kami Melayani : Pemasangan Lift Barang, Perbaikan Lift Barang, Jual Beli Lift Bekas Dan Baru, Perawatan Lift Barang, Jasa Konstruksi Lift Barang, Kontraktor Lift Barang, Modernisasi Lift Barang, Pemesanan Lift Barang, Konsultasi Lift Barang, Spare parts & Accessories Lift.
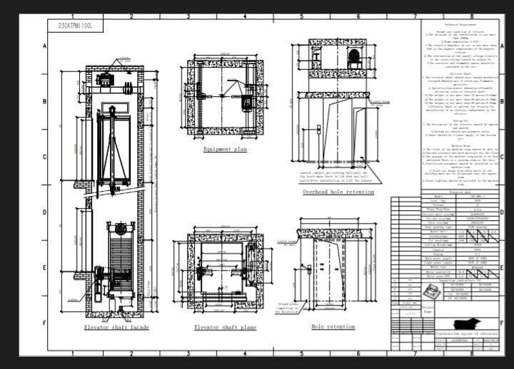
LIFT BARANG - ELEVATOR CARGO
Cargo lift merupakan solusi yang paling tepat untuk pemindahan material antara lantai (vertical). biasanya cargo lift sangat pas dipakai pada ruko, pabrik, atau gudang. Cargo lift dapat juga dipasang di outdoor. Pemakaiannya juga sangat mudah karena sudah dilengkapi dengan control otomatis yang terdapat pada tiap lantai. Dari segi keamanan juga sangat terjamin karena terdapat safety lock / safety device.
Kami siap mengaplikasikan cargo lift sesuai dengan permintaan anda, karena proses pembuatan sampai pemasangannya bisa disesuaikan dengan jumlah budget yang anda punya dan bisa juga disesuaikan dengan jenis sampai ukuran dan kapasitas muatan yang anda kehendaki.
Semua pekerjaan cargo lift yang kami buat sudah memakai perhitungan dasar ataupun prosedur pembuatan lift barang dan dengan pengalaman yang kami punya, kami dapat menciptakan cargo lift yang memiliki standard safety tinggi dan mutu yang jauh lebih baik dari lift maker lainnya. Dalam fabrikasi cargo lift bahan yang kami pakai yaitu memakai bahan baru dan tidak memakai besi bekas atau besi tua. Dan untuk mutu baja tersebut kami memakai bahan yang berkualitas.
Jasa Service Lift Barang
Asmu'in Jaya sebagai penyedia jasa pembuat lift barang dan Lift makanan, Kami juga tentu nya memberikan layanan perbaikan atau service lift barang dan juga menerima kontrak maintenance, Untuk pemeliharaan elevator secara berkala untuk merawat dan menjaga lift Anda sesuai kebutuhan dan permintaan customer.
Maintenance Lift
Pada umum nya lift mengunakan Guide-shoe untuk meluncur naik dan turun melalui rail yang di pasang di kanan dan kiri jika rail tidak di berikan gress atau gemuk maka, Guide-shoe akan cepat habis atau haus, Namun hal itu tentu nya hanya di lakukan oleh orang yang berpengalaman di bidang nya, Di karena kan mengingat resiko atau bahaya yang cukup tinggi jika di lakukan oleh orang yang bukan di bidang nya.
Berikut perawat komponen-komponen lift yang harus di perhatikan :
- Mesin Lift
- Guide shoe Lift
- Control Panel Lift
- Rope (seling)
- Chain (rante)
Kami siap membantu merawat dan memperbaiki lift Anda yang sedang ada masalah, Selain itu tentu nya masih banyak lagi komponen-komponen yang harus di jaga dan di cek secara berkala, Karena elevator adalah salah satu alat tyransportasi vertical yang sudah umum di Gedung-gedung bertingkat serta Pabrik & Ruko, Jika elevator Anda rusak tentu nya akan mempengaruhi kinerja untuk menaikan dan menurunkan barang-barang dalam jumlah banyak & berat yang tentu juga lebih tidak membuang waktu agar efisien dalam hal memindah kan barang di pergudangan atau Ruko dengan jumlah yang tidak sedikit per hari nya.
Jasa Service Lift Yang Kami Tawarkan :
- Pergantian Rope (seling)
- Pergantian Chain (rante)
- Perbaikan kontruksi
- Penambahan interior sangkar
- Pergantian roda (Guideshoe)
- Pembongkaran lift lama
- Pergantian push button & limit sensor
- Menjual sparepart lift
- Menjual mesin (Chain hoist)
- Menjual mesin (Rope hoist)
- Pergantian motor (mesin lift)
- Maintenance
- Perbaikan control panel Lift
- Pergantian control otomatis (panel)
- Perbaikan mesin lift barang
Service Control Panel Lift :
- Pergantian panel baru
- Perbaikan panel lift lama
- Panel lift menggunakan PLC
- Pergantian push button
- Pergantian sensor pintu lift
ASMU'IN JAYA TEKNIK
SIDOSERMO INDAH VIII/42
SIDOSERMO PDK VI NO.406
Telp / Fax : (031) 8412451
Telp / Fax : (031) 58284696
HP / Whatsapp : 0812 2334 4835
HP / Whatsapp : 0812 3377 8831
HP / Whatsapp : 0812 3133 8835
Email : asmuinjayagroup@gmail.com